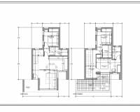
NIEUWBOUW VILLA'S IN LOS URRUTIAS, MURCIA Nieuwbouw moderne villa op 200m van het strand. De lichte villa, gebouwd over 2 verdiepingen, heeft 3 slaapkamers en 3 badkamers. De woonkamer geeft toegang tot het terras met privé zwembad van 6m x 3m. De open keuken is volledig uitgerust met huishoudelijke apparatuur en standaard huishoudelijke artikelen. De villa heeft ook een airconditioning systeem (warm/koud) en is volledig gemeubileerd met gordijnen en beddengoed. De balans tussen prijs, kwaliteit en ligging zorgt ervoor dat het huis ideaal is als investering voor de verhuur. VERPLICHT IN VAKANTIEVERHUUR! Dit kleinschalige project is de ideale combinatie van vakantie- en beleggingsobject. Bent u op zoek naar rust en wilt u binnen 200 meter van het strand en de boulevard zitten, dan is dit uw locatie. Het project is gelegen in Estrella de Mar, een idyllische urbanisatie net buiten het rustige vissersdorp Los Urrutias aan de Mar Menor. In deze urbanisatie vindt u een aantal restaurants, een supermarkt en bars. En alle andere voorzieningen zijn beschikbaar in de directe omgeving (kerk, apotheek, kranten en nog veel meer). Ontwikkeling gelegen op 43 km van Murcia, 16 km van Cartagena en op slechts 10 minuten rijden van Los Alcazares, een typische Spaanse badplaats waar zowel in de winter als in de zomer activiteit is. Los Urrutias is een gemeente in de autonome gemeenschap (comunidad) Murcia en ligt aan de Costa Calida met uitzicht op La Manga, de smalle strook land (lengte 22 km en breedte tot 1,5 km) die de Mar Menor scheidt van het open water van de Middellandse Zee.
Deze informatie is hier onderhevig aan fouten en maakt geen deel uit van een contract. De aanbieding kan zonder kennisgeving worden gewijzigd of ingetrokken. Prijzen zijn exclusief aankoopkosten.
Avenida del País Valenciano, 93b
Guardamar Del Segura (Alicante)

Allereerst bedankt dat je contact met ons hebt opgenomen.
We hebben uw verzoek met betrekking tot de eigenschap referentie ontvangen:CPN-86973. Een van onze agenten neemt zo snel mogelijk contact met u op.
Allereerst bedankt dat je contact met ons hebt opgenomen.
We hebben een aanvraag voor een rapport ontvangen als u de prijs van het onroerend goed met de referentie verlaagt: CPN-86973
Bekijk in de tussentijd eens een selectie van vergelijkbare woningen die voor u van belang kunnen zijn: